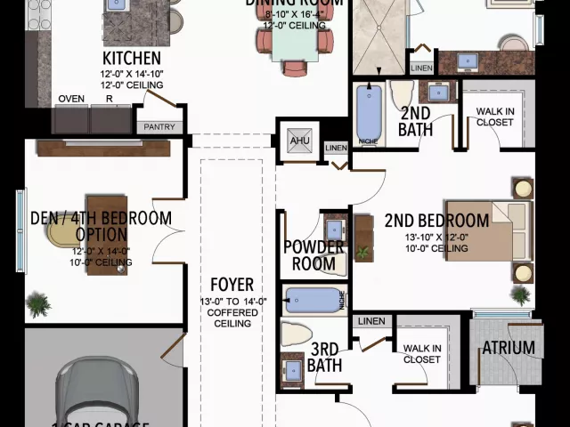
Lotus Palm / Fiji Collection BERMUDA / 501, Boca Raton, FL 33434
3-bedroom house for sale in Boca Raton
$1,254,900
Price




